Florida Crossroads Restaurant coming to Brandon

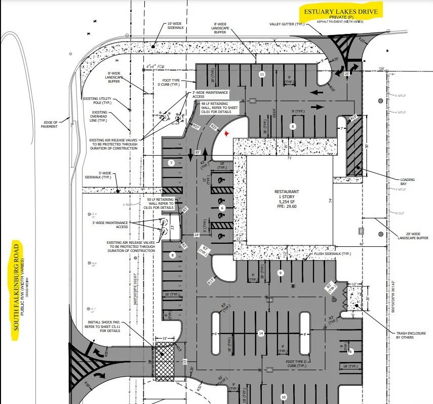
Brandon - “Florida Crossroads” has submitted plans to build a new 5,200sf sit-down restaurant off Falkenburg Road and Estuary Lakes Dr near Dave & Busters and Bass Pro shops and the new apartment complex under construction…

https://www.facebook.com/bokorscorner/posts/pfbid0hAeTkkGsY8RBD27C6DiqdQHCLeWBfDnBTbQWrnJZNeo9JvgsfMFT5Zqs7KAEmwDnl


The submitted plans are very vague other than size and location, so my guess is that “Florida Crossroads” has nothing to do with the name of the restaurant and refers to location, meaning this could be just about anything that works in a 5,254 sf building…roughly the size of a Chili’s (NOT saying this will be one…used for example)

 
Previous
Previous

Azteca D’Oro Mexican coming to Brandon Town Center Mall

Next
Next

Summer Ramen and Sushi Bar