No results found
Residential Updates
Home
Commercial Updates
Home
Listings
Real Estate Listings
BC Exclusive: Apollo Beach homesite perfect for a Custom Home
Rezoning Updates
Home
Subscribe to our newsletter.
For 10 years Bokors Corner has been keeping you informed and updated about the growth and development of eastern Hillsborough County. Join our newsletter as we continue to expand our coverage.
New Residential Construction
Jonathan Torres
New Residential Construction
Jonathan Torres
Lithia Springs Conservation Park to get addition
New Commercial Construction
Jonathan Torres
New Commercial Construction
Jonathan Torres
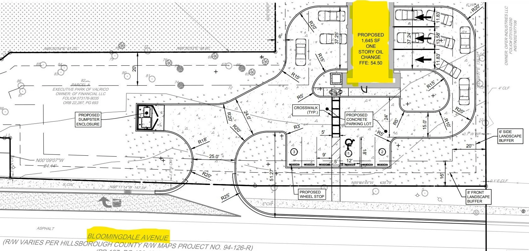
New Take 5 Oil Change coming
New Take 5 Oil Change coming to the north side of Bloomingdale Ave
New Residential Construction
Jonathan Torres
New Residential Construction
Jonathan Torres
September New Builds Update
Thank You for your interest in New Builds coming to Southern Hillsborough County, Plant City, and soon Parrish (why not…it’s exploding down there!) which will be included as part of next month’s update.
New Commercial Construction
Jonathan Torres
New Commercial Construction
Jonathan Torres
Belmont - New Wawa Location
Plans submitted for a new Wawa Store!
- retail
- new commercial
- new construction
- Riverview
- restaurant
- Brandon
- Apollo Beach
- commercial
- US 301
- SR 60
- new homes
- rezoning
- Valrico
- business
- Big Bend Rd
- riverview
- US 41
- FishHawk
- bloomingdale
- us 301
- residential
- Paseo Al Mar Blvd
- Ruskin
- single family homes
- Lithia Pinecrest
- apollo beach
- medical
- Gibsonton
- wimauma
- the yard at waterset
- valrico
- waterset
- entertainment
- Bell Shoals
- townhomes
- College Ave
- bloomingdale ave
- ruskin
- Gibsonton Dr.
- qsr
- coffee shop
- Sun City Center
- apartments
- brandon
- lithia pinecrest rd
- Homes By WestBay
- Lithia
- belmont
- car wash
- Lumsden Rd